Casa indipendente in vendita

Flero, Via S. Martino
€ 255.000
4 locali 4 locali
134 Mq 134 Mq
1 bagno 1 bagno

Casa indipendente in vendita

Flero, Via S. Martino

Descrizione annuncio

TECNORETE FLERO&PONCARALE

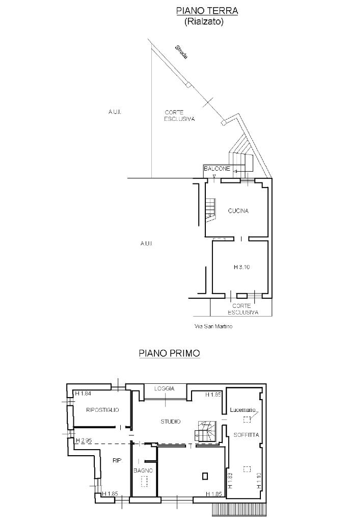
In zona centrale di Flero, proponiamo in vendita ricercata soluzione indipendente su due livelli, recentemente ristrutturata, con corte esclusiva.

L'immobile ha ingresso principale dalla strada, diretto nel grande soggiorno dalle forme regolari. La luminosa cucina semi separata dispone di un secondo ingresso collegato con la corte esclusiva posteriore. La scala a vista permette di collegare il piano terra al piano primo.

Accedendo al piano superiore si raggiunge un'ampia zona polifunzionale, organizzabile come secondo salotto o spazio dedicato a zona studio. Il luminoso vano è impreziosito da una scenografica apertura sulla loggietta con affaccio sulla tranquilla campagna. Su questo ambiente si aprono le stanze del piano. La grande ed elegante camera matrimoniale è facilmente separabile in modo da creare una pratica cabina armadio. Il bagno è totalmente ristrutturato e illuminato tramite una pratica velux, e ospita una grande doccia in muratura. Da un unico generoso locale sono state ricavate due stanze oggi utilizzate come due camerette.

Completa il piano un locale sottotetto attrezzato con gli attacchi per la lavanderia, pratica al piano delle camere, che funge anche da vano tecnico.

La corte posteriore esclusiva è parzialmente pavimentata e ospita un comodo posto auto.

La soluzione, edificata originariamente prima del 1967, è stata sapientemente rimodernata e ristrutturata, con l'aggiunta di importanti sistemi come impianto fotovoltaico, impianto d'allarme e di condizionamento.

L'indirizzo riportato è puramente indicativo e mostra il contesto in cui è posizionato l'immobile.

Seguici sulla pagina Facebook Tecnorete Flero & Poncarale - Home Facebook e resta sempre aggiornato su tutte le nostre proposte, oppure scarica TECNOCASA APP con oltre 200.000 annunci.

Flero, origine del nome: Il nome FLERO (comparso per la prima volta nell'841 in un documento del vescovo di Brescia Ramperto 'que est in loco qui dicitur Freores') deriva probabilmente dalla toponomastica carolingia Freores. L'espressione 'Freores' somiglia al termine bizantino 'Frear' che significa sorgente. Alcuni attribuiscono il nome all'espressione gallica 'Fl-ur' che significa comunque fontanile. La zona è molto ricca di risorgive e fontanili.

Mostra tutto

Nelle vicinanze

Trasporto pubblico Trasporto pubblico
Via Umberto I Scuole
Via Umberto I Scuole
370 m
Via Vittorio Emanuele II (chiesa)
Via Vittorio Emanuele II (chiesa)
380 m
Scuole Scuole
Scuola Primaria
400 m
Scuola Secondaria di Primo Grado Emiliano Rinaldini
450 m
Materna Comunale
1,0 Km
Scuole
2,2 Km
Scuola dell'Infanzia
2,2 Km
Farmacia Farmacia
Farmacia Saleri
2,5 Km
Farmacia Comunale 03 Folzano
2,9 Km
Supermercati Supermercati
Conad
1,4 Km
MD
1,6 Km
Family Market
1,6 Km
Famila
1,9 Km
Negozi Negozi
Daniel Market
2,3 Km
La Forneria
2,3 Km
Bar Bar
Effebar
1,1 Km
Ristoranti Ristoranti
BEFeD Flero
1,0 Km
Self Tavolamica
1,7 Km
Hostaria del Montenetto
1,8 Km
Pizzeria Ristorante Costa Azzurra
1,8 Km
Blue Jeans
1,8 Km
Mostra tutto

Caratteristiche

Rif.:
61182914
Piano:
Su più livelli di 2
Totale piani:
2
Posti auto:
1
Balconi:
1
Terrazzi:
1
Mostra tutto
Prezzo Prezzo
€ 255.000
Rata mutuo Rata mutuo
€ 1.208 / mese
Spese annue Spese annue
€ 0
Proponi il tuo prezzoProponi il tuo prezzo
Immobile valutato con T·Valuta

Classe Energetica

D
D
D
D
D
D
D
D
D
EP globale non rinnovabile:
144.39 kW h/m² anno
EP globale rinnovabile:
2.55 kW h/m² anno
EP invernale del fabbricato:
EP estiva del fabbricato:
Anno di costruzione:
1967
Riscaldamento:
Autonomo
Tipo impianto:
A radiatori
Tipo alimentazione:
Metano

Ti interessa visionare l'immobile?

Fissa un appuntamento  Fissa un appuntamento

Richiedi informazioni

Clicca su Leggi per aprire l'informativa
* Questi campi sono obbligatori

Calcola il tuo mutuo

Semplice e senza impegno
Anticipo

( % )
Mutuo

( % )

pochi semplici passi

inserisci i tuoi dati
Questionario completato
Grazie per aver richiesto un appuntamento senza impegno con un nostro Consulente del Credito e Assicurativo.

Hai inserito correttamente tutti i dati necessari e a breve riceverai una e-mail con un link da convalidare per inviare i tuoi dati.
Affiliato
Monte Netto Studio Srl
Via Agostino Gallo, 10 25020 Poncarale (BS)

Il nostro staff


  • Emanuele Pesce
    Affiliato

  • Mauro Scalvini
    Affiliato
Via Agostino Gallo, 10 25020 Poncarale (BS)
Zona: Flero-Poncarale
Mostra su mappa
Orari: Dal Lunedì al Venerdì: 09.00 alle ore 19.00. Il Sabato orario continuato dalle 09.00 alle 16.00
Affiliato
Monte Netto Studio Srl
Via Agostino Gallo, 10 25020 Poncarale (BS)

2026 Tecnocasa Franchising S.p.A. - P. IVA 08365160152 - Via Monte Bianco 60/A 20089 Rozzano (MI). Ogni agenzia ha un proprio titolare ed è autonoma. Privacy policy | Policy utilizzo | Cookie policy